この記事はアフィリエイト広告を利用しています。
城むすめの100名城と温泉めぐりヒーロー画像3

人吉城のワンポイントは[相良氏が約700年にわたり支配した居城、武者返し、球磨川]となってます。

染井さくら

こんにちは、人吉城を案内する城むすめの染井さくらです。この記事ではお城の見どころや周辺観光も紹介させてもらいます。よろしくお願いします♪

基本情報

人吉城相良神社

人吉城は相良氏が約700年にわたり支配した居城です。鎌倉時代に築かれ、戦国時代や江戸時代を通じて増改築されながら、地域統治の中心として機能しました。

初代当主の相良長頼は平安時代末期から鎌倉時代前期にかけての武将で相良頼景の子どもとして生まれました。

もともとは遠江国(現在の静岡県西部)にいましたが、源頼朝に仕えて畠山重忠の乱(畠山合戦)で戦功を挙げました。

また後に承久の乱でも幕府方として活躍しました。その功績により肥後国球磨郡(現在の熊本県人吉市周辺)を任され、肥後相良氏の祖となりました。

項目内容
場所熊本県人吉市麓町
築城年1198年(建久9年)
築城主相良長頼
主な城主相良氏
遺構城内、多門櫓、石垣、武者返し、相良神社、石階段、歴史館、二の丸、三の丸、本丸、本丸からの眺め
染井さくら

人吉城は日本100名城の93番に選ばれてます。相良氏は北条義時から梅の実五つを賜ったという伝承があり、これを由来に相良家の家紋は「五つ梅紋」となったと言われています♪

どんな城

人吉城城内

人吉城は日本三大急流の一つとされる球磨川と胸川を天然の外堀として利用し、水運を巧みに取り入れた平山城です。城下には複数の船着き場が設けられ、物資輸送や防衛の要としても機能していました。

特徴的なのは石垣の上部が外側に反るように築かれた「武者返し」の構造で、これはヨーロッパの築城技術である槹出(はねだし)工法の影響を受けたものともいわれています。

また本丸には天守はなく、かつて護摩堂があったと伝えられています。

現在は人吉城跡公園として整備され、櫓や塀の一部が復元されています。春には城の西側にある相良護国神社の境内から球磨川沿いに咲く桜並木が美しく、地元で親しまれる名所となっています。

大和なつき

人吉城は別名「繊月城」とも呼ばれています。これは月が水面に映える美しい姿から名付けられたと伝えられ、人吉城は歴史だけでなく風雅な魅力も持ち合わせています!

100名城スタンプと城アクセス情報

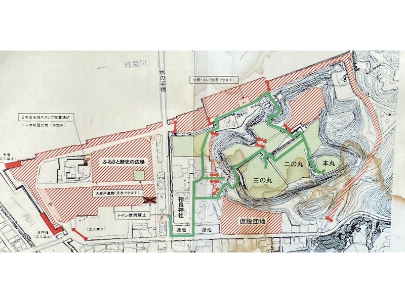
人吉城地図
人吉城スタンプ1
人吉城スタンプ2
人吉城歴史館

★100名城スタンプ設置情報
項目内容
設置場所人吉城歴史館
設置時間9:00〜17:00(入館16:30まで)
休日第2月曜(祝日の場合翌日)・12/29〜1/3
電話番号0966-22-2324
料金入館料:一般330円(高校生以下無料)/団体(20名以上)220円
備考スタンプ設置は1ヶ所。
★城へのアクセス・交通・駐車場情報
項目内容
住所熊本県人吉市麓町(人吉城跡)
アクセスJR「人吉駅」から徒歩約5〜15分
駐車場歴史館付近に無料駐車場あり
電話番号0966-22-2324(人吉城歴史館)
散策時間約30〜45分。城山散策を含めるなら60分前後が目安。
雪村ましろ

人吉城は広さもそこそこあり、石階段や生い茂った場所もあるので服装、靴ともに動きやすく長袖のようなものがいいかと思います。

見どころとイベント

人吉城石垣
人吉城二の丸
人吉城城内2
人吉城三の丸2
人吉城本丸
★写真

1枚目「石垣」
2枚目「二の丸」
3枚目「城内」
4枚目「三の丸」
5枚目「本丸」

★見どころ

人吉城は歴史を感じる佇まいをしている城となっています。

遺構は少ないですが城から町を見渡すと爽快な景色を見通すことができます。

また城散策中にヘビがいたのでその点は注意して散策することをお勧めします。

★遺構

多門櫓:川沿いの石垣の上に多門櫓と角櫓、そしてこれらを繋ぐ長塀が復元されています

武者返し:上部が反り返る独特の石垣で敵の侵入を阻む工夫がされています

二の丸:政務や生活の拠点だった郭跡で広々とした空間が残っています

本丸:城の中枢部分で現在は展望スペースとして活用されています

相良神社:人吉城内にあり、代々の藩主である相良家を祀る神社となっています

人吉城歴史館:発掘資料や城の復元模型が展示され、城の歴史を学べる施設となっています。また井戸を備えた特殊な石造りの地下室遺構があり、当時の地下室が体験できます

★イベント

春まつり(3月下旬〜4月上旬):約230本のソメイヨシノが植えられていて、花見の名所となっています。例年は3月下旬に満開になります

花火大会(8月):球磨川を背景に大輪の花火が打ち上がり、城跡と花火を楽しむことができます

紅葉まつり(11月):紅葉と石垣のコントラストが美しい秋の恒例行事となっています

※開催時期や内容は年により変更あり。事前に公式サイト確認を推奨

周辺の観光名所とグルメ

青井阿蘇神社
人吉駅前からくり時計
大村横穴群
天琴 ラーメン

天琴 ラーメン2

★写真

1枚目「青井阿蘇神社」
2枚目「人吉駅前からくり時計」
3枚目「大村横穴群」
4枚目「天琴」
5枚目「天琴ラーメン」

★今回の食事場所
項目内容
名称天琴(人吉本店)
金額ラーメン 650円(2025年)
所在地熊本県人吉市五日町40
アクセスJR人吉駅から徒歩約5分
連絡先0966-22-XXXX(要確認)
営業時間11:00〜20:00
休日火曜日
見どころ昭和レトロな雰囲気が残る老舗ラーメン店。あっさり豚骨スープと細麺が特徴で、地元客から観光客まで幅広く愛される名店です。
★周辺観光

青井阿蘇神社:平安時代の806年に創建されて以来1200年を超える神社で、国宝指定されています

人吉駅前からくり時計:球磨焼酎をテーマにしたユニークなからくり時計で、観光客に人気のスポットとなっています

大村横穴群:古墳時代の横穴墓群で、歴史好きにおすすめのスポットとなっています

球磨川:日本三急流のひとつで、ラフティングや舟下りで自然体験が可能となっています

球泉洞:全長4.8kmに及ぶ九州最大級の鍾乳洞です。海底にある約3億年前の石灰岩層が降起してできていると言われています。

人吉温泉:弱アルカリ炭酸水素塩泉や単純泉があり、日帰り温泉・立ち寄り湯などもあります。また風情ある街並みは九州の小京都にも含まれています。

秋月もみじ

天琴さんで焼きニンニク入りラーメンを頂きました。臭みのない豚骨スープでとっても美味しかったです☆

まとめ

本丸からの眺め

人吉城は700年近く一大名家の統治が続いた歴史のある城ですが、それだけ維持できた一つの要因は球磨川と胸川による天然の要塞となっているからだと思います。

その天然要塞の守りでこの城がどのように守られたかというのが見どころの一つだと思います。

そんな人吉城は今は桜の名所としても有名なようなので、できれば春の桜の季節に人吉城を廻るのが一番いいのかと思います。

染井さくら

人吉城はひっそりとした雰囲気の中にも町との調和が感じられるお城で、歴史と自然の両方を満喫出来て素敵なお城でした♪

大和なつき

人吉城の前後のお城は92番熊本城、94番大分府内城となっています。お時間あれば足を運んでみてください!

Xでフォローする

▼九州・沖縄の城をめぐる

九州
85. 福岡城86. 大野城87. 名護屋城88. 吉野ヶ里歴史公園89. 佐賀城90. 平戸城91. 島原城92. 熊本城93. 人吉城94. 大分府内城95. 岡城96. 飫肥城97. 鹿児島城

沖縄
98. 今帰仁城99. 中城城100. 首里城

城むすめ公式アカウントはこちら